Mr Thang

Client: Mr Thang

Location: Bai Muoi, Cao Thang, Ha Long

Category project: Biệt thự

Year project: 2020

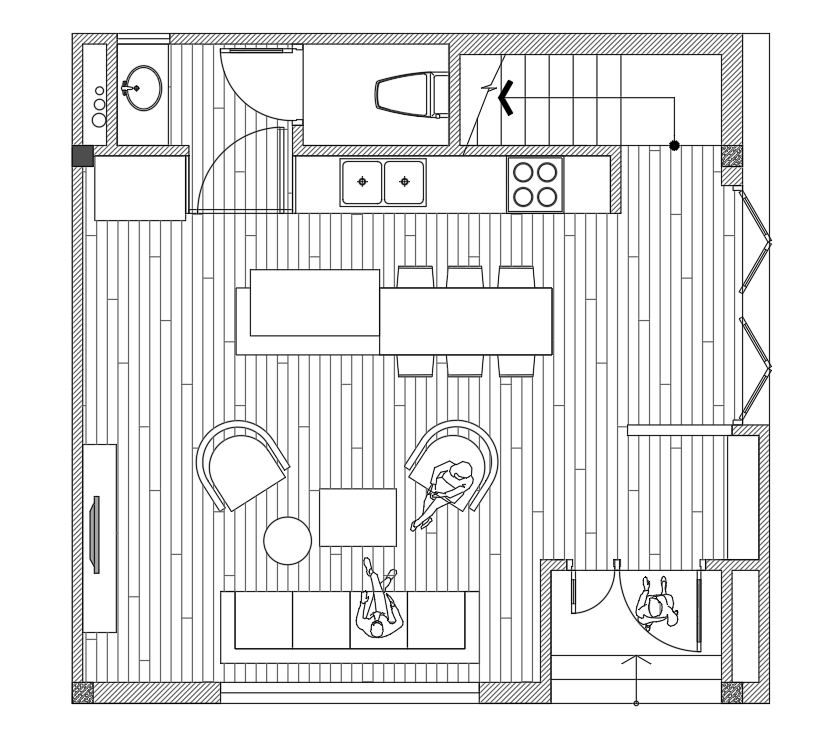
Nhà phố hiện đại – Nơi ánh sáng và không gian hòa làm một Giữa nhịp sống đô thị ngày càng chật chội, ngôi nhà này mang đến một hơi thở nhẹ, thoáng và đầy cảm xúc. Thiết kế hai tầng hiện đại với hình khối tối giản, sử dụng gỗ ốp ngoại thất kết hợp mảng kính lớn, tạo hiệu ứng ánh sáng tự nhiên xuyên suốt cả ngày. Từng chi tiết được tính toán kỹ lưỡng – từ đường phào, lam chắn nắng cho đến ban công cây xanh – tất cả làm nên một tổng thể vừa tinh tế, vừa an yên. ------------------ Mặt bằng công năng tối ưu – sống thoải mái trong từng mét vuông Tầng 1: không gian mở liên thông phòng khách – bếp – ăn, tạo trục giao thông mạch lạc, dễ kết nối giữa các thành viên. Cửa kính góc mở ra sân trước, đón sáng và gió tự nhiên, khiến căn nhà luôn tràn đầy năng lượng và sinh khí. Tầng 2: bố trí phòng ngủ master có ban công riêng, phòng ngủ nhỏ và góc đọc sách hướng view cây xanh – một cách sống giản đơn nhưng đủ đầy, dành cho những ai biết tận hưởng. ----------------- Vẻ đẹp tinh giản – sang trọng từ vật liệu tự nhiên Không chạy theo xu hướng hào nhoáng, ngôi nhà ghi điểm bằng sự cân bằng giữa gỗ, kính và ánh sáng. Sự đối thoại giữa vật liệu và thiên nhiên giúp không gian vừa hiện đại, vừa có chiều sâu – đúng chất “Minimal Luxury” mà Tầm Nhìn Kiến Trúc luôn theo đuổi. ---------------------